Rumia | Lokal Handlowo-Usługowy | Hala |

lokalizacja: Rumia, Grunwaldzka

16 000,00 PLN

37,91 PLN

Opis nieruchomości

TYLKO U NAS !
Na wynajem lokal handlowo-usługowy - Rumia, przy głównej trasie Gdynia-Wejherowo. ul Grunwaldzka 

Największe atuty:
- Parter budynku - doskonała ekspozycja przy głównej ulicy
- Witryny wystawowe widoczne z trasy o dużym natężeniu ruchu
- Ścianki działowe z możliwością usunięcia - dowolna aranżacja wnętrza
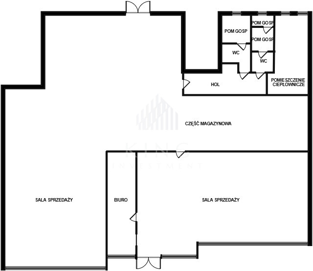
- Pomieszczenia socjalne: biuro, szatnia, łazienka, kotłownia z małym magazynkiem
- Dwa parkingi - z przodu i z tyłu budynku (teren ogrodzony)
- Dwa systemy ogrzewania: elektryczne i gazowe
- Dwie jednostki klimatyzacyjne, i monitoring
- Możliwość umieszczenia reklamy lub szyldu na elewacji
- Dojazd przystosowany dla dostaw ciężarowych (busy, TIR-y)
- Dostępny od ręki

Opis nieruchomości:
Na wynajem lokal handlowo-usługowy o powierzchni 422 m², położony na parterze budynku komercyjnego w Rumi, przy jednej z głównych ulic przelotowych łączących Gdynię z Półwyspem Helskim i Wejherowem.

Lokal obecnie podzielony jest na trzy pomieszczenia, jednak układ można dowolnie modyfikować — ścianki działowe można usunąć, uzyskując jedną dużą, otwartą salę sprzedaży.
Dzięki witrynom od strony ulicy, przestrzeń jest dobrze doświetlona i idealnie nadaje się na działalność handlową, ekspozycyjną lub usługową.

Część socjalna obejmuje:
- Biuro,
- szatnię,
- łazienkę,
- kotłownię z małym magazynkiem.

Lokal jest docieplony styropianem 15cm, oraz po wymianie okien, w 2024 roku. 
Na podłodze znajdują się płytki ceramiczne, a ogrzewanie zapewniają instalacje gazowa i elektryczna.
Dodatkowo zamontowano dwie jednostki klimatyzacyjne, oraz system monitoringu.

Funkcjonalność:
Obiekt idealny pod działalność:
- sklepu branżowego (np. meblowy, z wyposażeniem wnętrz, materace),
- hurtowni,
- biura obsługi klienta,
- przedszkola lub szkoły językowej,
- punktu usługowego, showroomu, magazynu z częścią ekspozycyjną.

Możliwa przebudowa lub adaptacja pod konkretną działalność - właściciel otwarty na potrzeby najemcy.

Wyposażenie i standard:
- Posadzka: płytki ceramiczne
- Ogrzewanie: gazowe + elektryczne
- Klimatyzacja: 2 jednostki
- Monitoring
- Siła (400V)
- Możliwość montażu szyldu / reklamy
- Parking dla klientów i pracowników z przodu i z tyłu budynku, (teren ogrodzony)
- Dojazd przystosowany dla TIR-ów i dostaw

Warunki najmu:

Czynsz 16 tyś. (Netto) miesięcznie.
Kaucja: 32 tysiące .
Długość trwania umowy min. 5lat  
Opłaty eksploatacyjne: według zużycia mediów.
Dostępność: od zaraz.

Lokalizacja:
Budynek położony przy głównej ulicy przelotowej w Rumi, w rejonie o bardzo dużym natężeniu ruchu.
W promieniu 500 m znajdują się: Castorama, McDonald’s, duże sklepy meblowe, siłownia, hurtownie motoryzacyjne oraz warsztaty samochodowe.
Świetna widoczność, duży potencjał komercyjny oraz wygodny dojazd zarówno dla klientów, jak i dostawców.

***


Serdecznie zapraszamy do kontaktu w celu uzyskania dodatkowych informacji oraz umówienia się na prezentację nieruchomości!
Potrzebujesz środków na realizację swoich planów? U nas otrzymasz kredyt idealnie dopasowany do Twoich potrzeb - na najlepszych warunkach!
Treść niniejszego ogłoszenia nie stanowi oferty handlowej w rozumieniu Kodeksu Cywilnego.



King Investment - Twój pewny wybór w inwestycjach.

Plan Nieruchomości

Kontakt do opiekuna:

King Investment Sp. z o. o.

Krzysztof Zelewski
Nieprawidłowy adres E-mail
Mapa

Strona korzysta z plików cookie w celu realizacji usług zgodnie z Polityką prywatności. Możesz określić warunki przechowywania lub dostępu do cookie w Twojej przeglądarce.